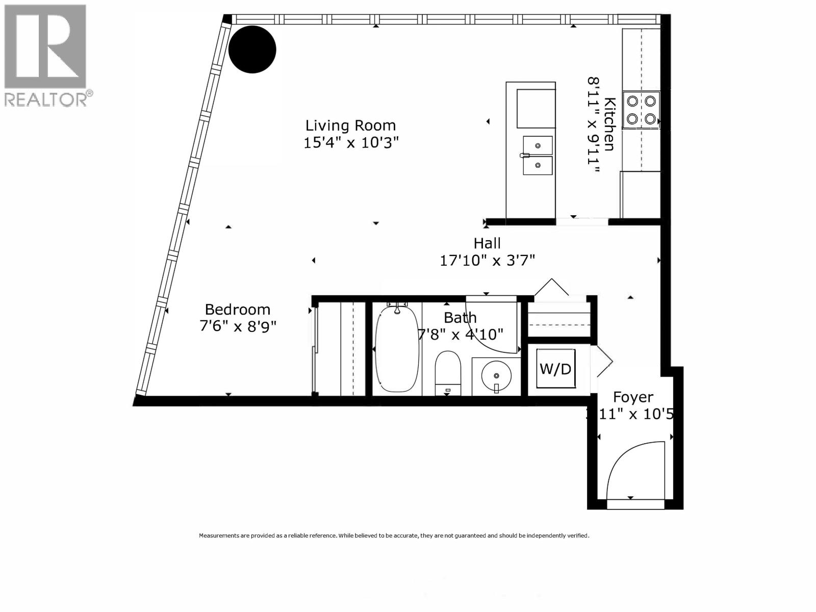
Want to live in Downtown Vancouver in one of the most central and sought-after addresses! Welcome to The Hudson, built by the reputable Wall Financial! This bright & spacious junior 1 bed / 1 bath corner suite on the 7th floor offers a highly functional and open layout. Featuring floor to ceiling windows, there is lots of natural light. Amenities include a concierge, fitness centre, lounge & meeting rooms. 2 storage lockers on the 7th floor and 1 parking. Pets and rentals welcomed with restrictions. A walker's paradise with a walk score of 99! Enjoy direct access to Granville SkyTrain, Pacific Centre across the street & steps from some of the best restaurants and entertainment in the city! Don't wait. Call now to view. (id:4069)
Address
718 610 GRANVILLE STREET
List Price
$519,000
Property Type
Single Family
Type of Dwelling
Single Family
Transaction Type
Sale
Area
British Columbia
Sub-Area
Vancouver
Bathrooms
1
Floor Area
539 Sq. Ft.
Year Built
2006
Maint. Fee
$301.54
MLS® Number
R3108647
Listing Brokerage
RE/MAX Crest Realty
Postal Code
V6C3T3
Site Influences
Recreation, Shopping
Features
Central location, Elevator
Amenities
Exercise Centre, Laundry - In Suite




























